5225 Taylor Road, PUNTA GORDA, FL 33950
Active
Property Photos
Would you like to sell your home before you purchase this one?
Priced at Only: $300,000
For more Information Call:
Address: 5225 Taylor Road, PUNTA GORDA, FL 33950
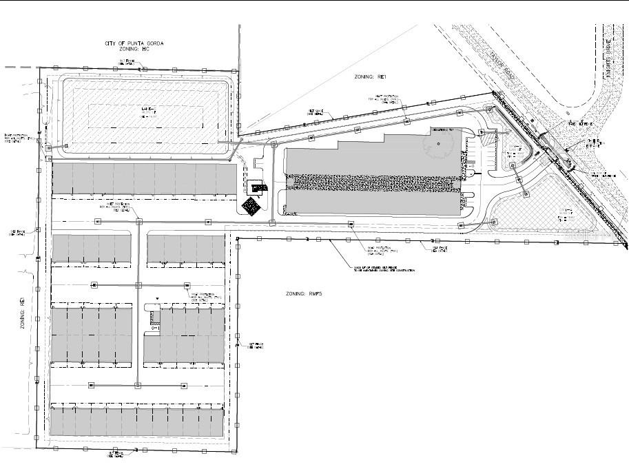
Property Location and Similar Properties
- MLS#: A4684223 ( Commercial Sale )
- Street Address: 5225 Taylor Road
- Viewed: 3
- Price: $300,000
- Price sqft: $231
- Waterfront: No
- Year Built: 2026
- Bldg sqft: 1300
- Days On Market: 54
- Additional Information
- Geolocation: 26.8916 / -82.0092
- County: CHARLOTTE
- City: PUNTA GORDA
- Zipcode: 33950
- Provided by: OPTIMUS CREIA
- Contact: Thomas Klein
- 941-270-3323

- DMCA Notice
-
DescriptionUnder Construction. At Florida Premier Garage Condos, we are committed to building every facility with uncompromising quality, structural integrity, and long term durability in mind. Our construction process is rooted in professionally engineered designs, independently verified testing, and industry best practices to ensure that each owner receives a product built to last for decades. Because a garage condo is a significant investment, we have created a list of important questions that every buyer should askboth of us, and of any other facility they may be considering. Not every facility in the market is built to the same standards, make sure you are asking the right questions, not just for today, but also for your long term ownership interests. Key Construction Advantages: masonry construction, including all interior and exterior walls Precast hollow core roof panels for enhanced durability Reinforcing downrods every 16 inches for added stability Intermediate tie beam / bond beam for increased structural rigidity 2 hour fire rated masonry walls between adjoining units Units engineered to Floridas strictest building codes 30" x 30" interior footers designed to support future mezzanine additions Built to withstand Floridas heat, humidity, storms, and time Craftsmanship Highlights: Built by skilled local engineers, masons, electricians, and finish specialists Precision construction from foundation through finishing Consistent attention to detail and structural accuracy Teams who take pride in creating a product that performs and lasts A build process that ensures both functionality and aesthetic quality Premium Features Include: Insulated garage doors for energy efficiency and comfort LED lighting throughout each unit Individual electrical meters billed directly to unit owners Smart WiFi enabled systems, including: Garage door openers, Door locks, AC controls Laundry sink for easy cleanup Water spigot included with water & sewer provided through POA fees WiFi access for remote control and convenience Structural readiness for customizations like mezzanines, workshops, or personalized upgrades Unit Size Mix: 40 FT Wide By 60 FT Deep 32 FT Wide By 52 FT Deep 30 FT Wide By 52 FT Deep 25 FT Wide By 52 FT Deep Call for more information!
Payment Calculator
- Principal & Interest -
- Property Tax $
- Home Insurance $
- HOA Fees $
- Monthly -
For a Fast & FREE Mortgage Pre-Approval
Apply Now
Apply NowFeatures
Building and Construction
- Covered Spaces: 0.00
- Flooring: Concrete
- Living Area: 0.00
- Other Structures: Garage(s), Storage
- Roof: Concrete
Property Information
- Property Condition: Under Construction
Garage and Parking
- Garage Spaces: 0.00
- Open Parking Spaces: 0.00
- Parking Features: RV Access/Parking
Utilities
- Carport Spaces: 0.00
- Cooling: Mini-Split Unit(s)
- Road Frontage Type: County Road
Finance and Tax Information
- Home Owners Association Fee: 0.00
- Insurance Expense: 0.00
- Net Operating Income: 0.00
- Other Expense: 0.00
- Tax Year: 2025
Other Features
- Association Name: Thomas Klein
- Association Phone: 8478127656
- Country: US
- Legal Description: ZZZ 214123 P22 21-41-23 P-22 4.09 AC. M/L S PORTION OF NE1/4 OF SE1/4 W & NW OF ROAD FRONTING 400 FT ON SAID RD 418/687 464/162 460/992 807/1499 NT807/1498 1327/312 Z 3397765 3405633/ ZZZ 214123 P24-2 21 41 23 P-24-2 6.65 AC. M/L COMM AT NW COR OF
- Levels: One
- Area Major: 33950 - Punta Gorda
- Parcel Number: 412321427004
- Zoning Code: PD
Similar Properties
- Marian Casteel, BrkrAssc,REALTOR ®
- Tropic Shores Realty
- CLIENT FOCUSED! RESULTS DRIVEN! SERVICE YOU CAN COUNT ON!
- Mobile: 352.601.6367
- 352.601.6367
- mariancasteel@yahoo.com







