7013 Mount Piney Road Ne 724, ST PETERSBURG, FL 33702
Active
Property Photos
Would you like to sell your home before you purchase this one?
Priced at Only: $450,000
For more Information Call:
Address: 7013 Mount Piney Road Ne 724, ST PETERSBURG, FL 33702
Property Location and Similar Properties
- MLS#: TB8452130 ( Residential )
- Street Address: 7013 Mount Piney Road Ne 724
- Viewed: 12
- Price: $450,000
- Price sqft: $176
- Waterfront: Yes
- Wateraccess: Yes
- Waterfront Type: Canal - Saltwater,Canal Front
- Year Built: 2000
- Bldg sqft: 2552
- Bedrooms: 2
- Total Baths: 2
- Full Baths: 2
- Garage / Parking Spaces: 2
- Days On Market: 140
- Additional Information
- Geolocation: 27.8361 / -82.6305
- County: PINELLAS
- City: ST PETERSBURG
- Zipcode: 33702
- Provided by: BAREFOOT REALTY GROUP
- Contact: Roxanne Noling
- 877-360-7577

- DMCA Notice
-
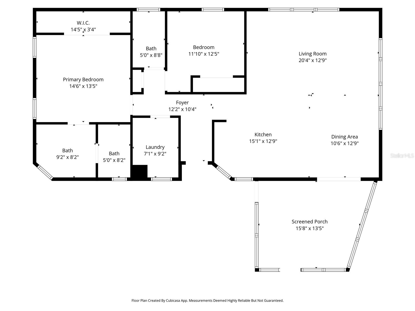
DescriptionExperience the best of serene coastal living in this beautifully maintained 2 Bedroom, 2 Bath waterfront home, perfectly situated on an exceptionally large 70 ft waterfront lot. From the moment you enter the spacious foyer, you'll be captivated by the sweeping panoramic views showcased through the oversized windows that frame the tranquil canal and the lush, private mangroves just across the water. Built in 2000 (furnishings negotiable) this home feels remarkably open and airy thanks to its cathedral ceilings, which enhance the light filled 1391 sq ft of living space. Elegant touches such as crown molding and tray ceilings add sophistication throughout. The seamless flow between the living, dining and kitchen areas creates an inviting atmosphere, while windows on multiple sides bathe the home in natural light from sunrise to sunset. Two spacious bedrooms provide privacy for residents and guests. The master bedroom has a large ensuite bath with double sinks, shower, and spacious walk in closet. The guest bedroom includes a murphy bed and built in desk area, easily transitioning from office space to a comfortable retreat for visitors. The 7 X 9 laundry room adds exceptional convenience, complete with washer, dryer, built in sink, and abundant cabinetry for extra storage. The expansive lanai overlooks the peaceful canal, a tranquil setting for morning coffee or sunset cocktails. The 40 ft dock with 10,000 lb boat lift (2000) offers direct access to open water and an easy 20 25 minute ride to Tampa Bay with no bridges. The 8 X 11 Shed has a work bench and loft for all your seasonal storage. Roof (2023), New foam vapor barrier (2024). Home is located in Americana Cove, a 55+ community with 24 hr manned gate. Low HOA $410 includes water, sewer, lawn mowing/edging, trash pickup, heated pool, fitness center, clubhouse, shuffleboard, bocce, and 2 boat ramps. Many clubs and activities for active lifestyles. Close to downtown St Petersburg (8 min), 2 airports (20 min) beaches (25 min). Don't miss this opportunity to live a coastal lifestyle in this beautiful home!
Payment Calculator
- Principal & Interest -
- Property Tax $
- Home Insurance $
- HOA Fees $
- Monthly -
For a Fast & FREE Mortgage Pre-Approval
Apply Now
Apply NowFeatures
Building and Construction
- Covered Spaces: 0.00
- Exterior Features: Rain Gutters, Sliding Doors
- Flooring: Laminate
- Living Area: 1391.00
- Roof: Shingle
Land Information
- Lot Features: FloodZone, City Limits, Near Golf Course, Near Marina, Near Public Transit, Oversized Lot, Paved
Garage and Parking
- Garage Spaces: 0.00
- Open Parking Spaces: 0.00
Eco-Communities
- Water Source: Public
Utilities
- Carport Spaces: 2.00
- Cooling: Central Air
- Heating: Central
- Pets Allowed: Breed Restrictions, Cats OK, Dogs OK, Size Limit
- Sewer: Public Sewer
- Utilities: Cable Available, Electricity Connected, Natural Gas Available, Sewer Connected, Sprinkler Recycled, Underground Utilities, Water Connected
Amenities
- Association Amenities: Clubhouse, Fence Restrictions, Fitness Center, Gated, Handicap Modified, Laundry, Pool, Shuffleboard Court, Storage, Vehicle Restrictions, Wheelchair Access
Finance and Tax Information
- Home Owners Association Fee Includes: Guard - 24 Hour, Common Area Taxes, Pool, Escrow Reserves Fund, Fidelity Bond, Maintenance Grounds, Management, Private Road, Sewer, Trash, Water
- Home Owners Association Fee: 410.00
- Insurance Expense: 0.00
- Net Operating Income: 0.00
- Other Expense: 0.00
- Tax Year: 2025
Other Features
- Appliances: Dishwasher, Disposal, Dryer, Electric Water Heater, Microwave, Range, Range Hood, Refrigerator, Washer
- Association Name: Chrissy Brush
- Association Phone: 727-526-9141
- Country: US
- Furnished: Negotiable
- Interior Features: Cathedral Ceiling(s), Ceiling Fans(s), Crown Molding, Eat-in Kitchen, High Ceilings, Kitchen/Family Room Combo, Living Room/Dining Room Combo, Open Floorplan, Primary Bedroom Main Floor, Thermostat, Tray Ceiling(s), Window Treatments
- Legal Description: MOBEL AMERICANA MOBILE HOME PARK (UNREC) LOT 724
- Levels: One
- Area Major: 33702 - St Pete
- Occupant Type: Owner
- Parcel Number: 29-30-17-58340-000-7240
- Possession: Close Of Escrow
- Unit Number: 724
- View: Water
- Views: 12
Similar Properties
Nearby Subdivisions
- Marian Casteel, BrkrAssc,REALTOR ®
- Tropic Shores Realty
- CLIENT FOCUSED! RESULTS DRIVEN! SERVICE YOU CAN COUNT ON!
- Mobile: 352.601.6367
- 352.601.6367
- mariancasteel@yahoo.com







































