14429 Birch Street, HUDSON, FL 34667
Active
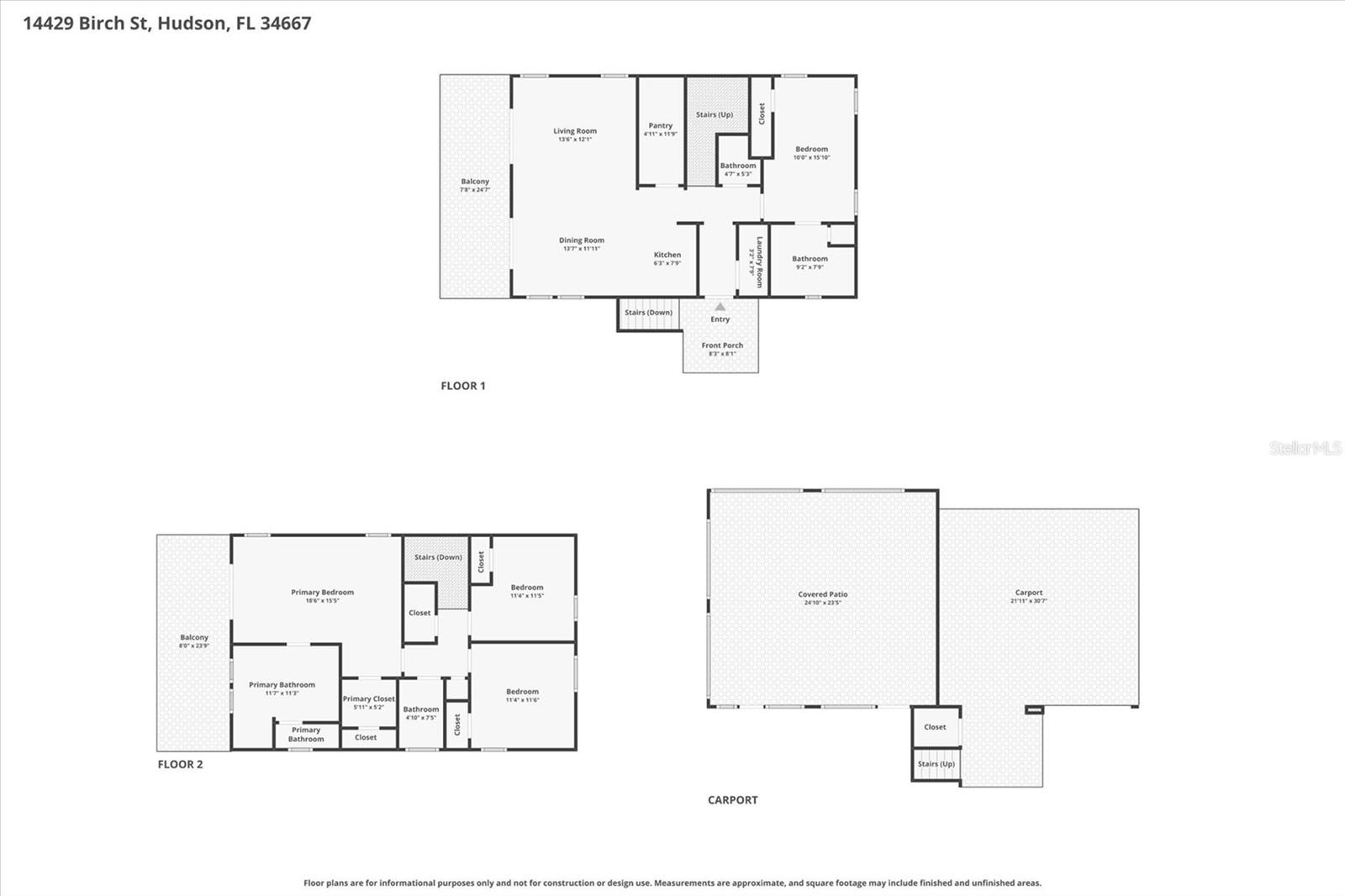
Property Photos
Would you like to sell your home before you purchase this one?
Priced at Only: $700,000
For more Information Call:
Address: 14429 Birch Street, HUDSON, FL 34667
Property Location and Similar Properties
- MLS#: W7885099 ( Residential )
- Street Address: 14429 Birch Street
- Viewed: 2
- Price: $700,000
- Price sqft: $0
- Waterfront: Yes
- Wateraccess: Yes
- Waterfront Type: Canal - Saltwater
- Year Built: 2022
- Bldg sqft: 3888
- Bedrooms: 4
- Total Baths: 4
- Full Baths: 3
- 1/2 Baths: 1
- Garage / Parking Spaces: 2
- Additional Information
- Geolocation: 28.3673 / -82.7041
- County: PASCO
- City: HUDSON
- Zipcode: 34667
- Subdivision: Gulf Shores First Add
- Provided by: GULF COAST FISHING HOMES RLTY
- Contact: GREG Klesius
- 813-394-4356

- DMCA Notice
-
DescriptionUnobstructed Gulf views, instant access to open water, and a true boating lifestyle define this exceptional 4 bedroom, 3 bathroom coastal stilt home. With 50 feet of waterfront, direct Gulf access, and no fixed bridges, this property is built for those who live for the water. Step out back to your 50 feet of concrete seawall and floating dock on a saltwater canal that leads straight to the Gulf of Mexico. Spend your days chasing redfish, snook, and snapper, or simply relax as dolphins and manatees glide past your backyard. From sunrise launches to sunset cruises, this home delivers the ultimate Gulf Coast boating experience. Rising three stories, the home is designed to maximize water views from nearly every level. The second floor features an open concept living space with a gourmet kitchen offering granite countertops, stainless steel appliances, white shaker cabinetry, and a large walk in pantry. The dining and living areas flow seamlessly to a spacious covered porch overlooking the Gulfperfect for entertaining or winding down after a day on the water. This level also includes an oversized bedroom with private guest bathroom, half bathroom and laundry room. The third floor elevates the experience even further with a private primary suite retreat. Enjoy your own covered balcony with sweeping, unobstructed Gulf views. The spa style ensuite includes a soaking tub, walk in shower, and dual granite vanities. Two additional guest bedrooms and a full bathroom provide ample space for family and guests, all designed with comfort and coastal living in mind. On the ground level, the outdoor lifestyle takes center stage. A versatile swim spa functions as a pool in the summer and a hot tub in the winter. The screened in sitting area overlooks the canal, while the outdoor kitchen, shower, and expansive covered space create the perfect setup for entertaining, relaxing, and storing all your boating gear. Theres plenty of room for vehicles, golf carts, and water toys, and a cargo lift makes moving supplies to the main living level effortless. Built in 2022, this home is equipped with modern hurricane features including impact windows and doors, along with a durable metal roof and siding. Tile flooring runs throughout for easy maintenance. With no HOA and a strong history as a successful short term rental, this property can be purchased turnkeyfully furnished and ready to enjoy or generate income immediately. Located in Hudson Beach, one of Floridas last authentic waterfront communities, youll experience a laid back coastal vibe where boating is a way of life. Cruise south to the popular Anclote Key Sandbar or explore the untouched beauty of Anclote Key Preserve State Park. Head north to Hernando Beach Flats, or venture further to the clear spring fed waters of the Weeki Wachee River, Homosassa River, and Crystal River. With convenient access to US 19, everyday essentials, waterfront dining, and marinas are just minutes away, while Tampa International Airport is about an hour drive. This is more than a homeits a Gulf Coast lifestyle. Fish from your dock, cruise to nearby sandbars, entertain under the stars, and live where every day ends with a sunset over the water.
Payment Calculator
- Principal & Interest -
- Property Tax $
- Home Insurance $
- HOA Fees $
- Monthly -
For a Fast & FREE Mortgage Pre-Approval
Apply Now
Apply NowFeatures
Building and Construction
- Covered Spaces: 0.00
- Exterior Features: Balcony, Outdoor Shower, Private Mailbox, Private Yard
- Flooring: Ceramic Tile
- Living Area: 1824.00
- Roof: Metal
Garage and Parking
- Garage Spaces: 0.00
- Open Parking Spaces: 0.00
Eco-Communities
- Water Source: Public
Utilities
- Carport Spaces: 2.00
- Cooling: Central Air
- Heating: Central, Electric
- Sewer: Public Sewer
- Utilities: Electricity Connected
Finance and Tax Information
- Home Owners Association Fee: 0.00
- Insurance Expense: 0.00
- Net Operating Income: 0.00
- Other Expense: 0.00
- Tax Year: 2025
Other Features
- Appliances: Dishwasher, Microwave, Range, Refrigerator, Washer
- Country: US
- Furnished: Negotiable
- Interior Features: Ceiling Fans(s), High Ceilings, Open Floorplan, PrimaryBedroom Upstairs, Solid Wood Cabinets, Stone Counters, Walk-In Closet(s), Window Treatments
- Legal Description: GULF SHORES FIRST ADDITION PB 5 PB 94 LOT 8 BLOCK 1 OR 9533 PG 3365
- Levels: Three Or More
- Area Major: 34667 - Hudson/Bayonet Point/Port Richey
- Occupant Type: Owner
- Parcel Number: 16-24-28-002.0-001.00-008.0
- Possession: Close Of Escrow
- View: Water
- Zoning Code: R4
Similar Properties
Nearby Subdivisions
Aripeka
Arlington Woods Ph 01a
Arlington Woods Ph 01b
Autumn Oaks
Barrington Woods Ph 02
Barrington Woods Ph 03
Beacon Woods
Beacon Woods Cider Mill
Beacon Woods Coachwood Village
Beacon Woods East
Beacon Woods East Clayton Vill
Beacon Woods East Sandpiper
Beacon Woods East Sandpiper Vl
Beacon Woods East Villages
Beacon Woods Fairway Village
Beacon Woods Pinewood Village
Beacon Woods Village
Beacon Woods Village 07
Beacon Woods Village 6
Bella Terra
Berkley Village
Berkley Woods
Bolton Heights West
Briar Oaks Village 01
Briar Oaks Village 2
Briarwoods
Briarwoods Phase 1
Cape Cay
Ceacon Woods Village 07
Clayton Village Ph 01
Country Club Estates
Di Paola
Di Paola Sub
Driftwood Isles
Emerald Fields
Fairway Oaks
Golf Mediterranean Villas
Griffin Park
Gulf Coast Acres
Gulf Shore Subdivision
Gulf Shores
Gulf Shores 1st Add
Gulf Shores First Add
Gulf Side Acres
Gulf Side Estates
Heritage Pines Village
Heritage Pines Village 02 Rep
Heritage Pines Village 12
Heritage Pines Village 13
Heritage Pines Village 14
Heritage Pines Village 15
Heritage Pines Village 16
Heritage Pines Village 17
Heritage Pines Village 19
Heritage Pines Village 21 25
Heritage Pines Village 22
Heritage Pines Village 23
Heritage Pines Village 24
Heritage Pines Village 29
Heritage Pines Village 30
Heritage Pines Village 31
Highland Hills
Highland Hillspasco
Highlands
Highlands Ph 01
Highlands Ph 02
Highlands Ph 2
Holiday Estates
Hudson
Hudson Beach Estates
Hudson Grove Estates
Hudson Hills
Iuka
Killarney Shores Gulf
Lakeside Woodlands
Leisure Beach
Long Lake Estates
Millwood Village
N/a
Not Applicable
Not In Hernando
Not On List
Pine Island Estates
Pleasure Isles
Pleasure Isles 1st Add
Pleasure Isles 3rd Add
Ponderosa Park Unit 3
Preserve At Sea Pines
Rainbow Oaks
Ravenswood Village
Riviera Estates Rep
Rolling Oaks Estates
Sea Pines
Sea Pines Sub
Sea Ranch On Gulf
Sea Ranch On The Gulf
Sea Ranch On The Gulf 5th Addn
Sea Ranchgulf Add 6
Spring Hill
Summer Chase
Sunset Estates
The Estates
The Estates Of Beacon Woods
The Estates Of Beacon Woods Go
The Reserve
Town Of Hudson
Treehaven Estates
U S 19 No 11 Addition
Vista Del Mar
Viva Villas
Viva Villas 1st Add
Viva Villas 1st Add Phase 1pb
Woodward Village
- Marian Casteel, BrkrAssc,REALTOR ®
- Tropic Shores Realty
- CLIENT FOCUSED! RESULTS DRIVEN! SERVICE YOU CAN COUNT ON!
- Mobile: 352.601.6367
- 352.601.6367
- mariancasteel@yahoo.com































































































